1. КРАНЫ МОСТОВЫЕ ЭЛЕКТРИЧЕСКИЕ ОБЩЕГО НАЗНАЧЕНИЯ
Компания «Кранталь М» предлагает к реализации краны мостовые опорные двухбалочные, общего назначения для работы в производственных помещениях и на открытых площадках.
1.1. КРАНЫ МОСТОВЫЕ ГРУЗОПОДЪЁМНОСТЬЮ 5 – 50/10т

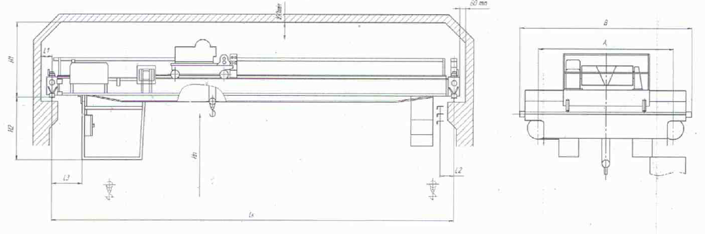
Изготовленные по конструкторской документации ВНИИПТМАШ с максимальной сквозной унификацией узлов деталей и принятых конструктивных решений. Краны состоят из коробчатого двухбалочного моста, оборудованного четырёхколёсной ходовой частью с раздельным приводом, грузовой тележки с одним или двумя механизмами подъёма и электрооборудования. Каждый полумост включает концевую балку с ходовыми колесами, приводом и жестко прикрепленную к ней главную балку. Полумосты соединяются между собой в стык при помощи электрозаклепок и сварочного шва. Грузовая тележка: опорная верхнего расположения, выполненная по классической схеме: мотор – редуктор – барабан. В механизмах кранов используются фазные или короткозамкнутые крановые двигатели, зубчатые соединительные муфты, цилиндрические редукторы горизонтальные и вертикальные (для механизмов передвижения) и колодочные тормоза. Барабаны механизмов подъёма выполняются с двумя нарезками с целью равномерного распределения нагрузки по главным блокам. Краны отработаны, надёжны и предназначены (если не оговорено особо) для эксплуатации в помещении или на открытом воздухе при температуре от –40 до +400С. Конструктивная масса кранов этого типа от 14,0 т и более.
1.2. КРАНЫ МОСТОВЫЕ ГРУЗОПОДЪЁМНОСТЬЮ 5 – 50/10т блочно-модульной конструкции.

Отличительная особенность данных кранов в том, что соединение концевой и пролетной балки крана производится через болтовые соединения с помощью болтов высокой прочности. Данное решение позволяет произвести сборку моста крана и монтаж крана без применения сварки, что ведет к значительному уменьшению времени и стоимости монтажных работ. Краны, по желанию заказчика могут изготовляться с грузовыми тележками, как с талевым механизмом подъема, так и с лебедкой (мотор- редуктор-барабан-тормоз). Привод передвижения моста и тележки регулируемый посредством преобразователя частоты и выполнен на мотор-редукторах. Краны имеют существенно меньшую массу.
Краны поставляются с управлением из кабины, с пола (с помощью подвесного пульта для неинтенсивного использования) или по радиоканалу.
В кабинах, выполняемых закрытыми или открытыми, устанавливаются контроллеры или кресла-пульты с джойстиками.
Краны изготавливаются, как правило, в климатическом исполнении У, а другие исполнения должны быть оговорены при заказе. Сейсмичность района установки – до 6 баллов по СниП II-7-81.
Базовое исполнение кранов – общепромышленное.
При работе на открытом воздухе краны оснащаются противоугонными захватами.
Питание кранов осуществляется, как правило, трёхфазным током напряжением 380 В и частотой 50 Гц.
Группы режима работы приведены по ИСО4301/1, подкрановые рельсы типа КР – по ГОСТ4121, а типа Р – по ГОСТ7174.
По желанию заказчика на кранах может устанавливаться ограничитель грузоподъемности с регистратором параметров, на кранах режима работы А6 установка ограничителя грузоподъемности обязательна.
Все краны сертифицированы.
Основные параметры кранов показаны в таблице . В необходимых случаях возможна поставка кранов с промежуточными значениями параметров.
Номенклатурный ряд
|
Грузоподъёмность, т |
5; 10; 12,5; 16; 16/3,2; 20; 20/5; 32; 32/5; 50; 50/10 |
|
Режим работы |
А2; А5; А6 |
|
Способ управления |
из кабины (для всех режимов) |
|
с пола (как правило для режима А2) |
|
|
по радиоканалу (по особому заказу) (режим А2 и А5) |
|
|
Пролёт, м |
10,5; 13,5; 16,5; 19,5; 22,5; 25,5; 28,5; 31,5; 34,5 |
|
Высота подъёма, м |
12, 14, 16 (по особому заказу до 50м) |
Основные параметры кранов с одним подъемом.*
|
Грузоподъёмность(т) |
Режим работы |
Высота подъёма, (м) |
Скорость, м/с |
Тип подкранового рельса |
||
|
подъёма |
передвижения |
|||||
|
крана |
тележки |
|||||
|
5 |
А2 |
16 |
0,065 |
0,4 |
0,25 |
Р38, Р43, Р50, Р65, КР70, КР80
|
|
А5 |
0,16 |
1 |
0,63 |
|||
|
А6 |
0,4 |
1,56 (2) |
0,8 |
|||
|
10 |
А2 |
16 |
0,04 |
0,45 |
0,3 |
|
|
А5 |
0,125 |
1,25 |
0,63 |
|||
|
А6 |
0,25 |
1,56 (2) |
0,63 |
|||
|
12,5 |
А2 |
16 |
0,04 |
0,45 |
0,3 |
Р43, Р50, Р65, КР70, КР80 |
|
А5 |
0,125 |
1,25 |
0,63 |
|||
|
А6 |
0,25 |
1,56 (2) |
0,63 |
|||
|
16 |
А2 |
16 |
0,04 |
0,45 |
0,3 |
|
|
А5 |
0,125 |
1,25 |
0,63 |
|||
|
А6 |
12 |
0,25 |
1,56 (2) |
0,63 |
||
|
20 |
А2 |
12 |
0,04 |
0,45 |
0,3 |
|
|
А5 |
0,125 |
1,25 |
0,63 |
|||
|
А6 |
14 |
0,25 |
1,56 (2) |
0,63 |
||
|
32 |
А2 |
12 |
0,04 |
0,32 |
0,3 |
|
|
А5 |
14 |
0,125 |
1,25 |
0,63 |
||
|
А6 |
12 |
0,2 |
1,25 |
0,63 |
||
|
50 |
А2 |
12 |
0,04/0,007 |
0,32 |
0,32/0,08 |
КР70, КР80, КР100, КР120 |
|
А5 |
0,125 |
1,25 |
0,63 |
|||
|
А6 |
0,16 |
1,25 |
0,63 |
|||
Основные параметры кранов с двумя подъемами.*
|
Грузо- подъём- ность, т |
Режим работы
|
Высота подъёма, м |
Скорость, м/с |
Тип подкранового рельса |
||||
|
подъёма |
передвижения |
|||||||
|
главный подъём |
вспомог. подъём |
главный подъём |
вспомог. подъём |
крана |
тележки |
|||
|
16/3,2 |
А2 |
16 |
16 |
0,04 |
0,16 |
0,45 |
0,3 |
Р43, Р50, Р65, КР70, КР80 |
|
А5 |
0,125 |
0,32 |
1,25 |
0,63 |
||||
|
А6 |
12 |
14 |
0,25 |
0,32 |
1,56 (2) |
0,63 |
||
|
20/5 |
А2 |
12 |
14 |
0,04 |
0,2 |
0,45 |
0,3 |
|
|
А5 |
0,125 |
0,2 |
1,25 |
0,63 |
||||
|
А6 |
14 |
0,25 |
0,32 |
1,56 (2) |
0,63 |
|||
|
32/5 |
А2 |
12 |
14 |
0,04 |
0,2 |
0,32 |
0,3 |
|
|
А5 |
14 |
0,125 |
0,2 |
1,25 |
0,63 |
|||
|
А6 |
0,2 |
0,32 |
1,25 |
0,63 |
КР70, КР80, КР100, КР120 |
|||
|
50/10 |
А2 |
12 |
13 |
0,04/0,007 |
0,2/0,03 |
0,32 |
0,32/0,08 |
|
|
А5 |
14 |
0,125 |
0,32 |
1,25 |
0,63 |
|||
|
А6 |
0,16 |
0,32 |
1,25 |
0,63 |
||||
*Размеры и другие массо-габаритные параметры, габаритные чертежи кранов будут предоставлены Заказчику при заполнении опросного листа в период согласования заказа.
ОПРОСНЫЙ ЛИСТ
кран мостовой электрический двухбалочный опорный

Скачать бланк данных для заказа крана


Москва, ул.Стандартная, д.6, стр.21
