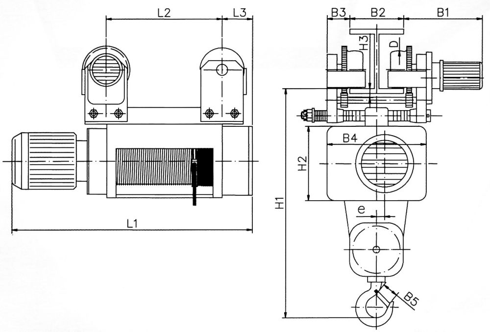
Тали электрические тип МРМ с нормальной строительной высотой - полиспаст 2/1
|
Предназначены для подъема, опускания и горизонтального перемещение груза вдоль прямолинейного подвесного монорельсового пути в помещениях или под навесом при температуре окружающей среды от -25°С до +40°С. Оснащены тормозом на механизме передвижения. Степень защиты - IP-54. Напряжение цепи управления - 24В.
Технические характеристики:
|
| Габариты | Высота подъема (m) |
Грузо- подъем- ность |
Размеры (mm) | |||||||||||||||
| Скорость подъема (m/min) |
L2 | L3 | H1 | H2 | H3 | B1 | B3 | B4 | B5 | D | e | |||||||
| 8 | 12 | 8/2 | 12/2 | |||||||||||||||
| L1 | ||||||||||||||||||
| 3 | H | 6,3 | 1000 | 831 | 831 | 877 | 877 | 343 | 170 | 810 | 268 | 23,5 | 289 | 37,5 | 312 | 34 | 100 | 30 |
| 9 | 907 | 907 | 953 | 953 | 419 | |||||||||||||
| 12,5 | 1007 | 1007 | 1053 | 1053 | 519 | |||||||||||||
| 18 | 1163 | 1163 | 1209 | 1209 | 595 | |||||||||||||
| 25 | 1361 | 1361 | 1407 | 1407 | 793 | |||||||||||||
| 4 | H | 6,3 | 2000 | 945 | 945 | 996 | 996 | 412 | 144 | 1033 | 352 | 22,5 | 343 | 42 | 428 | 40 | 125 | 41,5 |
| 9 | 1026 | 1026 | 1077 | 1077 | 493 | |||||||||||||
| 12,5 | 1131 | 1131 | 1182 | 1182 | 598 | |||||||||||||
| 18 | 1295 | 1295 | 1346 | 1346 | 698 | 150 | ||||||||||||
| 25 | 1504 | 1504 | 1555 | 1555 | 907 | |||||||||||||
| 5 | H | 6,3 | 3200 | 998 | 1035 | 1066 | 1066 | 412 | 144 | 1085 | 354 | 22,5 | 343 | 42 | 430 | 45 | 125 | 41,5 |
| 9 | 1097 | 1034 | 1165 | 1165 | 554 | |||||||||||||
| 12,5 | 1225 | 1262 | 1293 | 1293 | 598 | |||||||||||||
| 18 | 1427 | 1464 | 1495 | 1495 | 820 | 150 | ||||||||||||
| 25 | 1684 | 1721 | 1752 | 1752 | 1077 | |||||||||||||
| 6 | H | 6,3 | 5000 | 1099 | 1137 | 1190 | 1190 | 469 | 201 | 1258 | 424 | 30 | 364 | 55 | 490 | 55 | 150 | 44,5 |
| 9 | 1197 | 1235 | 1288 | 1288 | 576 | |||||||||||||
| 12,5 | 1323 | 1361 | 1414 | 1414 | 693 | |||||||||||||
| 18 | 1521 | 1559 | 1612 | 1612 | 801 | |||||||||||||
| 25 | 1774 | 1812 | 1865 | 1865 | 1054 | |||||||||||||
| 9 | H | 6,3 | 10000 | 1279 | 1279 | 1275 | 1275 | 493 | 214 | 1570 | 500 | 33 | 395 | 61 | 600 | 71 | 200 | 50,5 |
| 9 | 1373 | 1373 | 1369 | 1369 | 587 | |||||||||||||
| 12,5 | 1496 | 1496 | 1492 | 1492 | 710 | |||||||||||||
| 18 | 1689 | 1689 | 1685 | 1685 | 813 | |||||||||||||
| 25 | 1936 | 1936 | 1932 | 1932 | 1060 | |||||||||||||
| 1 | H | 7,5 | 16000 | 1506 | 1506 | 1506 | - | 660 | 227 | 1722 | 548 | 40 | 430 | 71 | 684 | 71 | 250 | 40,5 |
| 9 | 1565 | 1565 | 1565 | - | 719 | |||||||||||||
| 12,5 | 1712 | 1712 | 1712 | - | 866 | |||||||||||||
| 18 | 1943 | 1943 | 1943 | - | 942 | |||||||||||||
| 25 | 2236 | 2236 | 2236 | - | 1235 | |||||||||||||


Москва, ул.Стандартная, д.6, стр.21

